Z przyjemnością prezentuję nietuzinkową ofertę sprzedaży mieszkania po generalnym remoncie w samym sercu warszawskiego Śródmieścia, dwa kroki od Pałacu Kultury i Nauki oraz warszawskiego metra,
ul. Jana Pankiewicza 1.
✅ Lokalizacja:
Nieruchomość położona jest w niepowtarzalnej lokalizacji, pomiędzy ulicami Poznańską oraz Emilii Plater, do Dworca Centralnego 3 minuty pieszo. Jest to miejsce, która zapewnia doskonałą komunikację z całym miastem poprzez bliskość stacji metra, tramwaju oraz kolei, a
zarazem jest otoczona terenami rekreacyjnymi.
✅ Budynek:
Kamienica, wybudowana w latach 30-tych. Jest to kameralny budynek o niskiej zabudowie i małej liczbie sąsiadów, tylko 2 lokale na piętrze. Budynek w bardzo dobrym stanie technicznym.
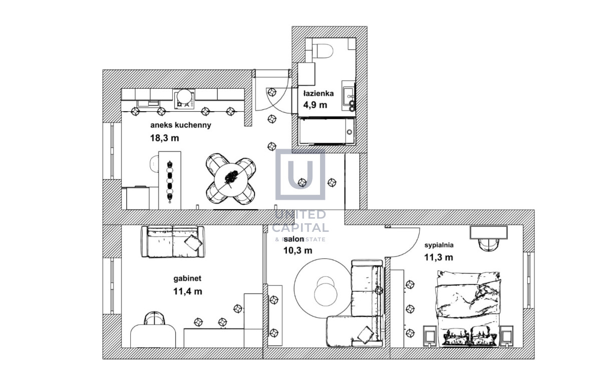
✅ Mieszkanie:
Lokal mieszkalny o powierzchni 56,3 (54,75 w KW) położony na czwartym piętrze. Składa się z części kuchenno-jadalnianej, osobnej części na miejsce multimedialne z opcją wstawienia narożnika, dwóch sypialni z szafami, przedpokoju oraz łazienki. Lokal gotowy do zamieszkania dla nowego nabywcy. Mieszkanie przeszło generalny remont, który ukończony został w tym roku. Całkowicie nowa instalacja elektryczna, na ścianach położone
gładzie gipsowe, na podłodze NOWA deska dębowa. Zabudowa kuchni oraz szafy wnękowe w sypialniach, salonie oraz przedpokoju robione na wymiar u stolarza. Duża ilośc punktów świetlnych, dzięki czemu mieszkanie jest bardzo fajnie doświetlone nocą.
Ekspozycja pn.-wsch i pd.-zach. oraz wysokie okna gwarantują bardzo dużo światła naturalnego - w pogodny, bezchmny dzień przestrzenie między budynkami i położenie lokalu na wysokim piętrze gwarantują ogromną ilość słońca w mieszkaniu.
✅Powierzchnie dodatkowe:
Do mieszkania przynależy piwnica.
W okolicy strefa miejskiego parkowania.
✅ Stan prawny:
Pełna własność, możliwość zakupu na kredyt.
Czynsz: ok 614 zł.
Serdecznie zapraszam na prezentację
Jestem do Państwa dyspozycji 7 dni w tygodniu.
Igor Ignatiuk
Ekspert ds. Nieruchomości United Capital
Tel. 727 923 380
Kamienica | Wysokie 280 | Jasne | Cisza
lokalizacja: Warszawa, Nowogrodzka
1 349 000,00 PLN
23 960,92 PLN
Dane szczegółowe
- Typ transakcji: sprzedaż
- Typ nieruchomości: Mieszkanie
- Lokalizacja: Warszawa Śródmieście, Nowogrodzka
- Powierzchnia:56,30 m2
- Liczba pokoi: 3
- Rok budowy: 1936
- Piętro: 4 z 6
- Numer oferty: UC907523
- Cena: 1 349 000,00 PLN
- Cena za m2: 23 960,92 PLN
Opis nieruchomości
Kontakt do opiekuna:
United Capital & Real Estate